図面屋.com 店舗設計詳細図「虎の巻」

 
  • ホーム
  • ショップコンポーネントとは
  • プロフィール
  • 店舗の作図お手伝いします
  • お問い合わせフォーム
人気記事
  1. 《建具図》必見!引き戸の作図事例 ”きほんのき”

    《建具図》必見!引き戸の作図事例 ”きほんのき”(91 view)

  2. 《建具図》ミラー貼り建具の注意すべき点は開口補強と建具!

    《建具図》ミラー貼り建具の注意すべき点は開口補強と建具!(88 view)

  3. 天井間接照明造作の詳細図事例

    天井間接照明造作の詳細図事例(80 view)

  4. 《建具図》ガラスFIXのスチールドア(SD)の作図事例

    《建具図》ガラスFIXのスチールドア(SD)の作図事例(74 view)

  5. スチールフラットバー(FB)使用の開口枠とその応用例

    スチールフラットバー(FB)使用の開口枠とその応用例(73 view)

  6. 木製引き戸の基本的となる作図事例

    木製引き戸の基本的となる作図事例(72 view)

  7. 《建具図_024》建具枠の開口補強についての作図事例

    《建具図_024》建具枠の開口補強についての作図事例(72 view)

  8. 《建具図_035》基本的なスチールドア(SD)の作図事例

    《建具図_035》基本的なスチールドア(SD)の作図事例(69 view)

すべての人にやさしい店舗設計の考え方

  • 公開日:2026-01-14
  • 店舗について
  • 知っておくべきこと
年頭にあたり、これまで私が考え続けてきたことを、少しまとめてみました。今年でリタイヤを迎えますが、約40年この業界に身を置いたことで、本当にさまざまな経験を積むことができました。 以下の文章が、これからの現場を担う方々の […]
続きを読む

接客テーブルの”きほんのき”の作図事例

  • 公開日:2025-11-12
  • テーブル什器
  • フロントエリア
シンプルで使い勝手が良い! 接客テーブルって、一見どれも似たように見えるけど、実は細部のつくりが大事なんです。お客様と向かい合う空間では、派手さよりも落ち着きと安心感が求められる。 今回の事例は、そんな“基本”をしっかり […]
続きを読む

スチール丸パイプで構成した壁面什器の作図事例

  • 公開日:2025-11-05
  • 壁面システム什器
  • 壁面自立型什器
現在でも活躍できそうなフォルムと機能 この作図事例は、私が駆け出しの頃に描いた,壁面什器です。ブランド名は,何やら「インターメッツ」ってなってます。当時お世話になった「レナウン」のブランドです。 百貨店のメンズブランドで […]
続きを読む

《天井造作》長い通路で活躍する間接照明のキャノピー

  • 公開日:2025-11-03
  • 天井造作
間接照明の基本型だが……! 今回の作図事例は,間接照明のカバー>?当時は,『キャノピー』なんて呼んでまして、要は建物の壁面からせり出した『庇』のこと理解してください。 この物件の空間デザイン上、天 […]
続きを読む

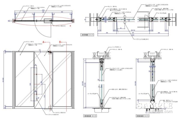
《建具図》テンパライトドアとガラスサッシの作図事例

  • 更新日:2025-10-30
  • 公開日:2025-10-29
  • テンパーライトドア
建具類は、図面屋にとって必須です。しかし、その厄介さが元で描きたがらない、というか描ける人は年々少なくなっているのが現状です。 まぁ、サッシ屋さんに依頼した方が楽と言えば、確かに楽です。 しかし、あえてこのややこしい図面 […]
続きを読む

汎用性があるドレスシャツ壁面什器の作図事例

  • 公開日:2025-09-08
  • 壁面自立型什器
オーソドックスな什器であるが、素材変化で活躍が期待される! 今回は、1999年に描いた図面です。当時、一世風靡した”レナウン”の紳士服ブランドのひとつでした。 このショップは、全国の百貨店に多く展開されていた […]
続きを読む

小物アクセサリー什器の代表例となる作図事例

  • 公開日:2025-09-04
  • ディスプレー什器
  • フロントエリア
小物アクセサリーを旨く見せるトレーに注目! ■サイズ ■仕様 W1500×D450×H985図面参照 本体:木OPハケ塗り仕上げ上置きトレイ:木工作OPハケ塗り塗装仕上 ■備考 業態:アクセサリーショップ 難易度:初級編 […]
続きを読む

ベーカリーショップのガラスショーケースの作図事例

  • 公開日:2025-08-29
  • ガラスショーケース
一度は描いておきたい食品売り場のガラスショーケース 仕事柄、どのようなときも客からの依頼はあります。「このような什器描けますか>?」なんてね。 元々アパレル出身者の私は、メインは華やかなレディースの売り場を設計でした。だ […]
続きを読む

紳士雑貨で活躍するショーケースの作図事例

  • 更新日:2025-08-29
  • 公開日:2025-08-20
  • ガラスショーケース
■サイズ ■仕様 W1500×D1200×H1100図面参照 本体:木下地CL仕上げショーケース部:t=8mmクリアガラス ■備考 作図解説 百貨店の改装は、多く手掛けてきましたが実施設計としては、そのほとんどが店内に配 […]
続きを読む

《壁面造作》壁面全面をミラー貼りにした作図事例

  • 公開日:2025-07-24
  • 壁面造作
作図は簡単だったが、現場は四苦八苦でした! 今回は、かなり昔(2015年)大きなゲームセンターで実施図面を担当したときの作図事例です。内容は、大したことはありませんが、ミラー貼りの納めには必須の内容です。 図面はシンプル […]
続きを読む

クラシカルなディスプ用ビッグレーテーブル 作図事例

  • 公開日:2025-07-17
  • テーブル什器
  • ディスプレー什器
使用目的を理解するのは厄介! 一見して、「一体どう使うんだ、この什器」って、私は思った。多くの店舗を扱ってきた私ですが、さすがに実施図面を描きながら思った。 平面図を確認できなかったので、良くなかったのは確か!だが、これ […]
続きを読む

ゴージャスなオープンタイプのガラス棚 作図事例

  • 公開日:2025-07-15
  • 2段タイプ棚什器
  • 棚什器
とにかく高級感というか…。そんな雰囲気が良かったのだろう! 腰に、”スワロフスキー”を敷き詰めた今回の、オープンタイプのガラス棚什器は、重かったとしか記憶が無かったような……。 デザイ […]
続きを読む

ガラス・パーティションの納め図 ”きほんのき”

  • 更新日:2025-07-15
  • 公開日:2025-07-14
  • パーティション
■サイズ ■仕様 W1200×D50×H2400図面参照 スクリーンフレーム:25×50スチール角パイプメラミン焼付仕上押さえ縁:9角スチール角パイプメラミン焼付仕スクリーン:t=10クリアガラス ■備考 20 […]
続きを読む

《壁面造作》壁面(柱形)に固定棚を取り付ける作図事例

  • 公開日:2025-07-10
  • 柱巻造作
図面屋の必須の項目のひとつ! 今では珍しくなくなった納まりのひとつが、壁面や柱形に取り付ける固定棚の実施図です。このブログでも、何度も取り上げてきたテーマのひとつですね。 図面屋の初心者からは、「壁から“ニョキッ”と棚が […]
続きを読む

充実した機能が光る親子テーブル什器の作図事例

  • 公開日:2025-07-07
  • テーブル什器
機能的には良いんだ、ちょっと煩さも感じる! 今回は、俗に言う『親子テーブル』なる什器です。随所に木の満載で、雑貨店などで重宝する什器とぉも割れるが、図面を見ているト、やや煩さを感じます。 シンプルな空間には、きっと合わな […]
続きを読む

チャペル内に取り付けたブラケットの作図事例

  • 公開日:2025-06-24
  • 壁面造作
シンプルなフォルムは空間の邪魔にはならない! 今回ご紹介するのは、過去に手掛けたブライダルの一環でチャペルの壁面に取り付けたブラケットです。デザイン性は感じられませんが、そのシンプルさは良かったと考えます。 図面精度は、 […]
続きを読む

高級感漂う段違いハンガーラックの作図事例

  • 公開日:2025-06-20
  • ハンガー類
  • フロントエリア
■サイズ ■仕様 W450×D500×H1600 Hについては可動 本体:SUS HL角パイプ ステージ:SUS.HLフレーム+レザー貼り ■備考 2020.01.21更新 作図解説 今回はかなり個性的なハンガー […]
続きを読む

気配りが感じられるフィッティングルームの作図事例

  • 公開日:2025-06-12
  • フィッティングルーム
  • ユーティリティー
狭い空間を旨く使った ”気配りフィッティング” フィッティングルーム(以下、FR)にも“ちょっとした気配り”が求められる時代になってきました。お客様の使い勝手への配慮など、もはや単なる「箱」では通用しない空間として、FR […]
続きを読む

曲線を生かした吊りボーダーの作図事例

  • 更新日:2026-01-06
  • 公開日:2025-06-06
  • ボーダーサイン
  • 天井造作
アイキャッチーとして役割!! ファストフード店舗において、天井から吊るタイプの「ボーダー装置」は、照明演出とブランドイメージの印象づけを同時に叶える重要な存在です。 カウンターまわりのアイキャッチーとして設置されることが […]
続きを読む
  1. 1
  2. 2
  3. 3
  4. 4
  5. 5
  6. 次へ

最近の記事

  • すべての人にやさしい店舗設計の考え方

    すべての人にやさしい店舗設計の考え方

  • 接客テーブルの”きほんのき”の作図事例

    接客テーブルの”きほんのき”の作図事例

  • スチール丸パイプで構成した壁面什器の作図事例

    スチール丸パイプで構成した壁面什器の作図事例

  • 《天井造作》長い通路で活躍する間接照明のキャノピー

    《天井造作》長い通路で活躍する間接照明のキャノピー

  • 《建具図》テンパライトドアとガラスサッシの作図事例

    《建具図》テンパライトドアとガラスサッシの作図事例

  • 汎用性があるドレスシャツ壁面什器の作図事例

    汎用性があるドレスシャツ壁面什器の作図事例

サイト内検索

ブログランキング参加中

にほんブログ村 デザインブログへ
にほんブログ村

デザインランキング

お問い合わせ

お問い合わせ

ご質問・ご相談などは、お問い合わせフォームよりお気軽にお問い合わせください。

最近の投稿

  • すべての人にやさしい店舗設計の考え方

    すべての人にやさしい店舗設計の考え方2026-01-14 101 view

  • 接客テーブルの”きほんのき”の作図事例

    接客テーブルの”きほんのき”の作図事例2025-11-12 126 view

  • スチール丸パイプで構成した壁面什器の作図事例

    スチール丸パイプで構成した壁面什器の作図事例2025-11-05 122 view

  • 《天井造作》長い通路で活躍する間接照明のキャノピー

    《天井造作》長い通路で活躍する間接照明のキャノピー2025-11-03 130 view

  • 《建具図》テンパライトドアとガラスサッシの作図事例

    《建具図》テンパライトドアとガラスサッシの作図事例2025-10-29 9532 view

カテゴリー別作図事例

  • アイデア (2)
  • サイン全般 (49)
    • サインボックス (8)
    • ボーダーサイン (9)
    • 吊り式サイン (11)
    • 壁面サイン (4)
    • 柱サイン (4)
    • 突き出しサイン (1)
    • 置き式サイン (3)
  • ショーケース全般 (53)
    • ガラスショーケース (40)
    • 大型ショーケース (9)
  • センターエリア (29)
    • 2段タイプ棚什器 (2)
    • システム什器 (10)
    • ボリューム什器 (4)
    • 棚什器 (14)
  • フロントエリア (67)
    • VMD什器 (2)
    • オープン棚什器 (19)
    • テーブル什器 (23)
    • ディスプレー什器 (24)
    • ハンガー類 (4)
  • ユーティリティー (67)
    • カウンター (18)
    • カウンターバック (4)
    • サービスカウンター (9)
    • フィッティングルーム (10)
    • ベンチシート (7)
    • ユーティリティー什器 (13)
    • レジカウンター (4)
    • 収納家具 (2)
  • 作図の描き方 (1)
  • 壁面エリア (68)
    • 壁面システム什器 (7)
    • 壁面自立型什器 (11)
    • 壁面造作什器 (53)
  • 店舗について (1)
  • 店舗環境造作 (107)
    • ガラススクリーン (2)
    • ショーウィンド (15)
    • トイレ (4)
    • パーティション (15)
    • 壁面造作 (26)
    • 天井造作 (21)
    • 床造作 (1)
    • 柱巻造作 (19)
    • 演出照明 (4)
    • 開口枠 (1)
    • 間接照明 (1)
  • 建具 (126)
    • テンパーライトドア (5)
    • ミラー貼り建具 (15)
    • 両開き戸 (16)
    • 引き戸 (19)
    • 折れ戸 (3)
    • 木製建具 (57)
    • 片開き戸 (38)
    • 特殊な建具 (9)
    • 鉄扉(SD) (14)
  • 日記と雑感 (4)
    • 管理人の記録 (1)
  • 未分類 (1)
  • 知っておくべきこと (19)
    • 虎の巻 (7)

投稿日

2026年3月
月 火 水 木 金 土 日
 1
2345678
9101112131415
16171819202122
23242526272829
3031  
« 1月    

月刊アーカイブ

VMD きほんのき アクセサリー インロー式 インロー式固定 カウンター ガラスFIX ガラスFIX建具 ガラススクリーン ガラス棚 サービスカウンター システム什器 シャッターパネル ショーケース ショーケース付き スチールドア スライドドア ディスプレー ディスプレー什器 バッタリ戸 ファサード ファサードサイン フレームレス ブライダル ボーダーサイン ミラー貼り建具 両開き戸 吊りサイン 吊りボーダー 堀上天井 壁面造作 姿見 引き戸 文具 木製建具 框戸 演出照明 片開き戸 特殊建具 芯出し 行灯サイン 象嵌サイン 鉄扉 間接照明 隠し蝶番

メタ情報

  • ログイン
  • 投稿フィード
  • コメントフィード
  • WordPress.org
© 2024 図面屋.com 店舗設計詳細図「虎の巻」
  • シェア
  • TOPへ