シンプルで使い勝手が良い!
接客テーブルって、一見どれも似たように見えるけど、実は細部のつくりが大事なんです。
お客様と向かい合う空間では、派手さよりも落ち着きと安心感が求められる。
今回の事例は、そんな“基本”をしっかり押さえた正統派のデザイン。そして、どんな店舗にも合う、まさに“きほんのき”と言える内容です。
作図自体は、とても簡単なので、初心者の方も安心です。
図面読み込みスタート!約2分!

| ■サイズ | ■仕様 |
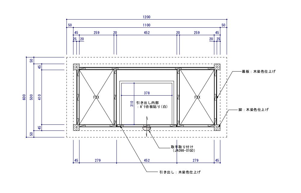
| W1200×D600×H700 図面参照 | 本体:木下地+染色CL仕上げ 引き出し:木下地+染色CL仕上げ 取手取り付け(JA098-01GO) |
| ■備考 2010.10作図 | ■難易度:初級編/★★★☆☆ |
作図解説
全体サイズは、W1200×D600×H700で、接客や簡単な打ち合わせにちょうどいい寸法。脚部は細身のテーパー脚で、軽やかに見せつつ幕板でしっかり補強しています。
脚先にはアジャスターを仕込み、床の不陸にも対応しています。
中央には浅めの引き出しを設けており、文具や伝票を収納できる構成となっています。内部仕上は白のポリ合板貼りで、清潔感があり実用的です。
仕上げは木染色でまとめ、温かみのある落ち着いた印象に仕上げています。
どこにでもありそうな、接客テーブルですが、今でも引けを取らないシンプルな什器だと感じます。
作図ポイント

この図面で一番の見どころは、断面図にあります。天板厚45mmのボリュームをどう見せるか、引き出しをどう納めるかといった“線で語る工夫”が凝縮されています。
断面図では、天板下の有効寸法をしっかり確保しながら、スライドレールを自然に納める設計が確認できます。
脚の取付位置をやや内側に振ることで、足元のゆとりとデザインバランスを両立。さらに、幕板と脚の取り合い部分も明快で、構造とデザインの整合性が取れています。
つまり、この断面図には、見た目の軽やかさと構造的な安定感、その両方を成り立たせるための考え方が詰まっているんです。
尚、上のはい断面図と平行に見ていただければ、より理解が進むはずです。

まとめ
このテーブル図面を見て感じるのは、“基本を丁寧に描く”ことの大切さです。派手な意匠はなくても、寸法バランスや構造の理解がしっかりしていれば、自然と美しい形に仕上がる。
特にそれぞれの断面詳細図を通して、強度・納まり・デザインのバランスを学べる構成は、初心者にとっても良い教材になります。
接客テーブルの中でも、まさに基礎を学ぶにはうってつけの一枚。設計の原点を思い出させてくれる図面です。







