天板が光る華やかさ!
久々の投稿ですが、最近はやたらホテルの仕事が多くてとても疲れて気味。
しかし、読者の方の期待は裏切れないので、老体むち打って頑張っています。
さて、今回ご紹介するのは、10年以上前に友人が勧めてくれた”天板が光る”簡易テーブルです。
おそらく、おめでたい席でのパーティールームに設置したと聞いていました。(結婚式場)
デザイン性が有るので、あまり真似ることも無いでしょうが、何かのヒントになれば幸いです。
また、図面精度としては申し分なく、充分な作図に仕上がっています。
ですから、図面屋を目指す人にとって、きっと役立つと考えます。
それでは、いつものように図面の見込みからはじめてください!(15分)
| ■サイズ | ■仕様 |
| W300×D300×H1000 図面参照 | 本体:t2mm スチールプレートクロームメッキ仕上 天板:t12mmタペガラス、15mm面取り 内部乳半シート+拡散シート |
| ■備考 | ■難易度:上級編★★★★☆ |
作図解説
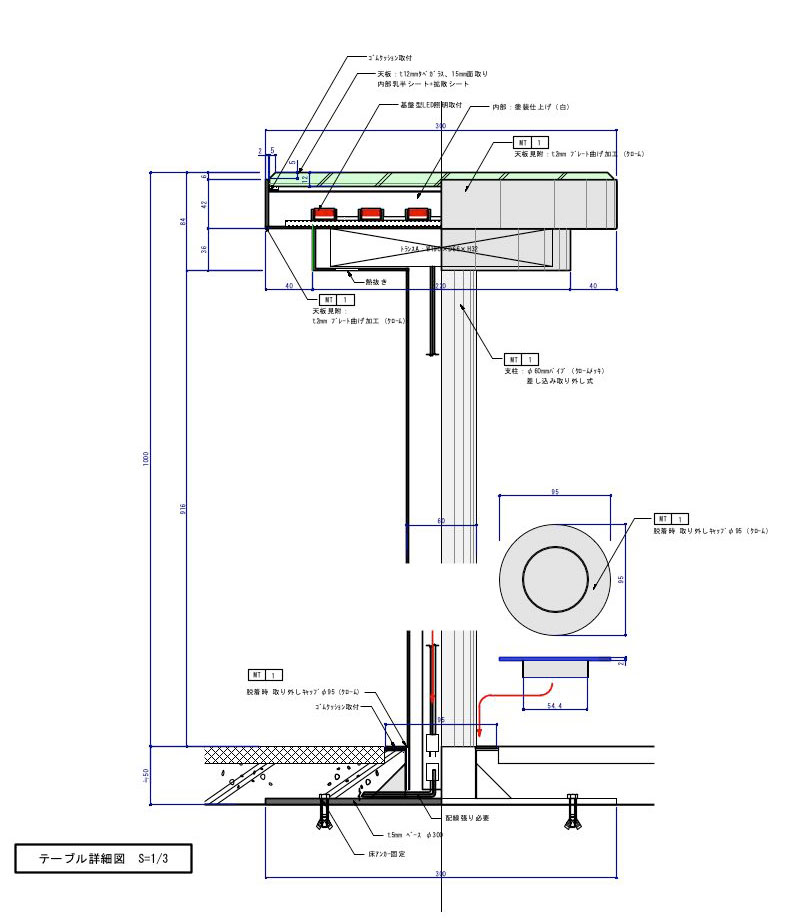
本体は、オールスチール下地クロームメッキ仕上で、天板に15mmのタペストリーガラスを落とし込んだちょっと凝った造りになってます。
三面図は、簡単に描けると思うのですが、いざ断面詳細図になると手が止まってしまう気もします。(笑)
しかし、よくよく見ると初心者の方もこの事例を参考にすれば、描けるようにも感じます。
ただ、理解するのは厳しいかもしれません!(何かあればお問い合わせください)
旨く考えられていると感じたのは、このテーブルが脱着式という考え方です。(後の断面図で説明します)
きっと、この広間は多様性に富んでいたと考えます。
おめでたい席って、様々なスタイルがあるので、機転を利かせて友人が考え出したのでしょう。
凄い発想だと感じました。
それでは、以下の断面詳細図をご覧ください。

テーブルといっても、φ300mmなので立食パーティには打って付けの装置だと思います。
この場合、テーブルに置くものもグラス程度ですから、何の問題も無いと考えます。
前述した考え方が、この断面詳細図の下部を見れば、一目瞭然でしょう。
下部に、描かれてるキャップ(平面図、側面図)をテーブル撤去後に落とし込むんです。
電源関連の描かれてますので、確認してください。
ただ、このテーブルの重さは半端ではないので懸念は残りますが……..。
何れにせよ、旨い(面白い)装置です。是非参考にしてください!
以下に部分詳細図を載せておきます。しっかり勉強してノウハウ自分のモノとしてください。
こういったノウハウの積み重ねこそ、重要な要素と私は考えます。

作図時点で、”線の太さ”を意識してなかったので、全体が、ぼてっとした感じで見にくい面もありますが、ここはご容赦を!
以下の詳細図は、テーブルの下部(固定位置)を示しますが、きっと現場は大変だったと思われます。
また、このキャップの表現も良いと感じます。
別物として描くと、ちょっと分かりづらくなりますからね!とても親切な図面だと感心しました。
こういうのを真似ると褒められますね!
今回は以上とします!ありがとうございました。









