シンプルなフォルムは空間の邪魔にはならない!
今回ご紹介するのは、過去に手掛けたブライダルの一環でチャペルの壁面に取り付けたブラケットです。
デザイン性は感じられませんが、そのシンプルさは良かったと考えます。
図面精度は、かなり高い!
ですが、時間をかけてひとつひとつ進めていけば、きっと理解出来るはずです。
それでは、図園読み取りを行ってください。

| ■サイズ | ■仕様 |
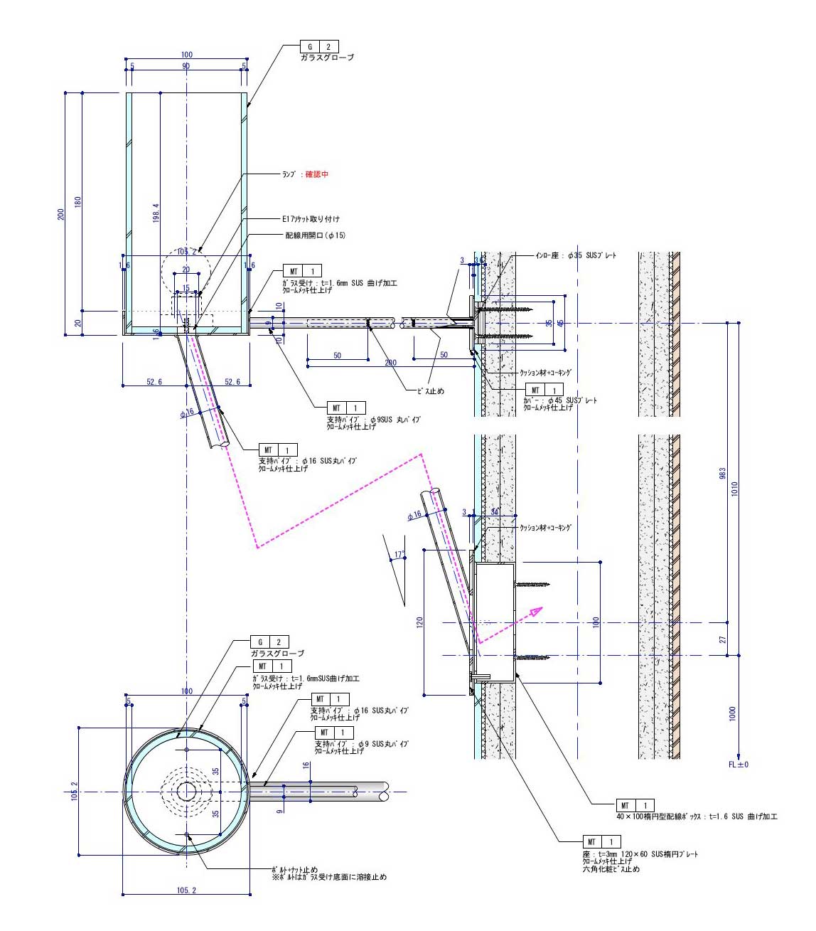
| W100×D350×H1200 *その他寸法は図面参照もこと! | トップ:ガラスグローブ 支持パイプ:φ16 SUS丸パイプクロームメッキ仕上げ 支持パイプ:φ9SUS丸パイプクロームメッキ仕上げ 座:t=3mm 120×60 SUS楕円プレートクロームメッキ仕上げ *各部詳細図参照のこと |
| ■備考 | ■難易度:上級編★★★★☆/4.5 |
作図解説

今回ご紹介するのは、チャペルの壁面に取り付けたブラケットの作図事例です。
見た目はごくシンプルで装飾性は控えめですが、それゆえ空間に溶け込み、主張しすぎない仕上がりになっています。
シンプルな意匠は、実は空間を邪魔しないという意味で非常に優れた選択肢です。
このような照明器具の取付構造は、現場によって若干の差はあれど、基本的な納まり方は大きく変わりません。
ですから、この事例を理解しておくことで、他の案件でも必ず役に立つと思います。
ぜひ一度、じっくり図面を見てみてください。
ちなみに…図面を描いている途中、「あっ、紙面に入らへんやん!」と気づいて急遽一部を割愛した図面が左にありますが、ここだけの話(笑)。
本来やってはいけないことですが、枚数の都合上、やむなく調整しました。その分、納まりの図面は丁寧に描き込んでいます。
事例の図面構成は、平面・立面・断面の三面構成になっています。前半の2枚は比較的素直に描けましたが、断面詳細図に関しては手こずりました。
特に照明器具と傾斜材の接合部など、細部を詰めるのに時間がかかり、完成まで丸一日を要した記憶があります。でもこの程度の図面が描けないと、プロとしてはやはり一人前とは言えません。
逆に言えば、時間をかけてでもきっちり描ければ、きっと力になる図面だと思います。
作図ポイント
この図面の要点をいくつか挙げておきます:
-
ブラケットは壁面2点固定式。そのうち1点はPB下地のさらに奥にある補強下地(スチール)固定用インローパイプを付け、ランプ側の差し込みパイプにビス固定している構造。これは現在では標準的な手法と言って良いでしょう。
-
傾斜材(斜めパイプ)は1本物。比較的納めやすい部材ですが、ランプ本体との接点はシビアに処理が必要で、丁寧に図面化しました。
-
特に、ブレ防止(揺れ止め)の固定方法は工夫を凝らし、しっかり構造として成立するように設計。
納め図として仕上がった時には、「よっしゃ!」と声が出るくらい達成感がありました(笑)。
まとめ
今、改めてこの図面を見返してみると、そこまで難しいとは感じません。でも、当時の私は「こんなん描けるかいな…」と思っていたのです。経験とは不思議なもので、今ではこれ以上に複雑な納まりをいくつも描いています。
やっぱり、何事も“慣れ”と“積み重ね”ですね。








