フィッティングルーム廻りにVMDを演出
| ■サイズ | ■仕様 | 
| W3740×D2350×H2100 図面参照 | 壁面 : t35mm レリーフパネル+ダイライトt6.5mm 切り文字貼 +AEP塗装仕上取付 固定ハンガーパイプ : □22mm SUSビーズブラスト仕上 | 
| ■備考 | |
| 上級者/難易度:★★★★☆ | 
作図解説
アパレルショップで、柱巻を利用してフィッティングルーム(以下FR)を設置するケースは、少なくありません。
というのも、特に売場の区画内に壁面らしきものが、無い中央の売場にとって、広い面を使っての陳列が確保出来きなくて困ります。
今回の作図事例は、その一例として、FRの造作壁を利用した固定式ハンガーとガラススクリーンの作図をご紹介します。
FRの入り口を除いて、各面にはステージと固定式ハンガーを取り付け、柱全体を覆う造作壁を有効活用しています。
ステージにはアッパーライトの演出照明を取り付けて、下方向から商品を浮き出たせる装置となっています。以下断面図とその部分詳細を確認しましょう。
事例での仕様と納めポイント
さて、柱とFRを囲む壁面には、ちょっとした素材を活用しています。それは、レリーフパネルです。(以下フォトの左部参照)

最近では、既にお馴染みの素材です。壁面の表情を凹凸で表現した素材です。間延びしそうな壁面も、これを用いることで変化と締まりを感じます。
それに、立体的なレリーフと照明効果によって出来る陰影は、非常にインパクトがあり、アクセント効果も期待できます。
ただ、かなりのコストと取り付け手間がかかるので、事前チェックが必要かと思います。
今回の事例は、このレリーフ壁の全面にガラススクリーンを2箇所設けているようです。スクリーンには、ブロンズガラスを用いて、クラシックなイメージを演出しています。
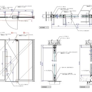
それでは、断面図を各部の詳細図を見ていきましょう。
ガラススクリーンは上下フレームと押さえ縁で構成した一般的な納め方です。ですが、このままでは自立させることが不可能なので、壁からインロー式の補強を取っています。上記 a部詳細図を参照下さい。
確認できますか?「インローパイプ:□14×32mmSTEEL素地仕上げ」という表現です。ただ、作図の失敗点は、止めのビスは下じゃなくて、上から止めます。
続いて、このガラススクリーンの下部はどうなっているでしょうか。以下参照!
上の図を見ると、左にステージ。ここには、ハンガーパイプが有るのですが、事前にステージの裏面に取り付けたスチールベースに、インロー内パイプを溶接し、上からハンガーパイプ支柱を差し込み、ビス止めという納めとなっています。
その後ろに演出照明が見て取れます。そして、前述したガラススクリーンの下部が示されています。
ここでのポイントは、ガラススクリーンの納めです。
概ねこの納めで充分です。”きほんのき” と思ってもらっていいでしょう。基本角パイプを事前に溶接して、その後、ガラスをはめ、抑え縁で止める。基本です。
続いて、固定ハンガーですが、スクリーンと同じように壁からインローパイプを持ち出し、固定しています。以下の b部詳細図を参照下さい。

まとめとして
今回のガラススクリーンとその前の固定ハンガーが、絡んだ場合の注意点は、取り付け順を必ず考慮して設計しなければなりません。
まず、ガラススクリーンフレームと、固定ハンガー用持ち出しパイプ、ステージ(設置時には固定ハンガーの支柱ベースを取り付けおきます)
そして固定ハンガー、最後にガラススクリーンといった順を考えて各部の詳細図を作成しています。(今回の事例)
ただステージ内の間接照明器具をシームレスラインで設定していますが、トップの乳半アクリとの距離が近すぎるのでアクリ越しに器具の形が見えてしまいます。
LED照明か、エースラインで再計画して器具の影が無くす処理が必要でしょう。
その他、作図上での注意点としては、固定ハンガーの持ち出しパイプと、ガラススクリーンの接点です。
ガラスの貫通穴の高さと開口寸法には現場サイドとの入念な打合せを行う必要があります。ちょっとでもずれてしまうとガラスを取り替えなければいけませんからね。(汗)
↓ ↓ ↓












