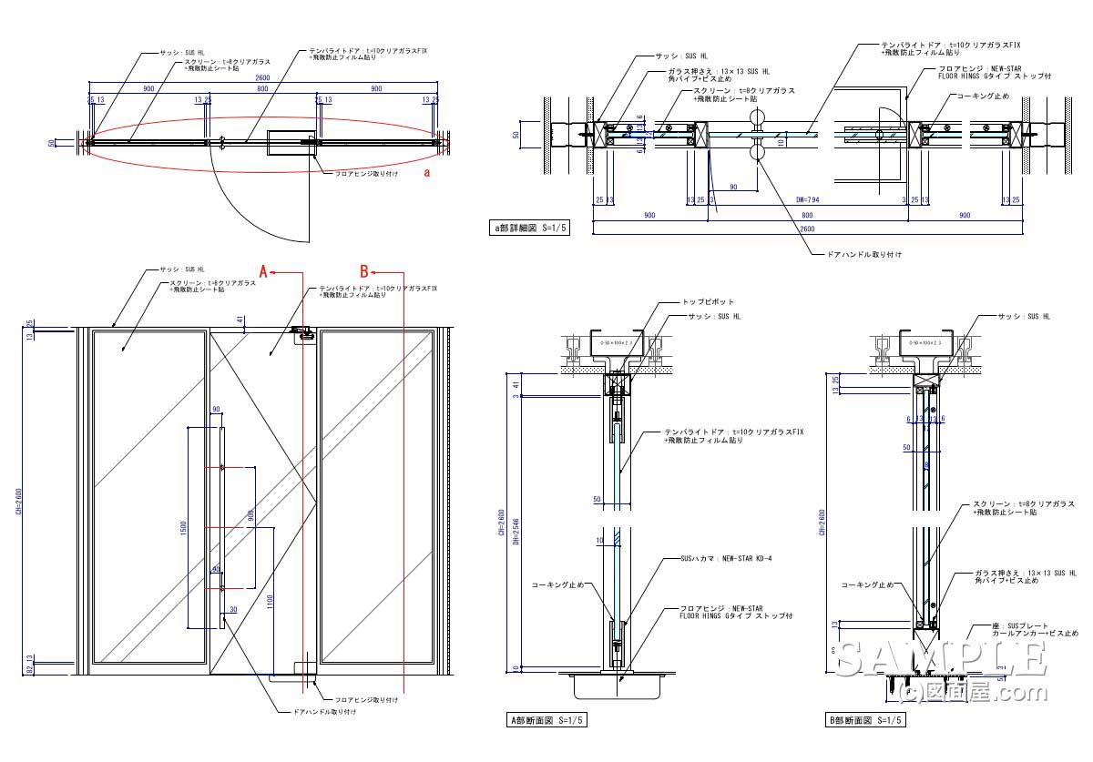
《建具図》テンパライトドアとガラスサッシの作図事例 更新日:2025-10-30 公開日:2025-10-29 テンパーライトドア 建具類は、図面屋にとって必須です。しかし、その厄介さが元で描きたがらない、というか描ける人は年々少なくなっているのが現状です。 まぁ、サッシ屋さんに依頼した方が楽と言えば、確かに楽です。 しかし、あえてこのややこしい図面 […] 続きを読む