《稼げる図面》虎の巻_002/一般的な建具図の描き方 更新日:2024-09-25 公開日:2023-06-12 作図の描き方知っておくべきこと虎の巻 基本的な木製片開き戸の作図方法 今回から、ちょっと指向を変えて作図方法などを伝えようかと思いつきました。 第1回目として、『基本的な木製片開き戸の作図方法』からはじめていきます。 店舗には無くてはならない『建具』! 今回 […] 続きを読む
《稼げる図面》虎の巻_001/一般的なカウンターの描き方 更新日:2023-06-12 公開日:2023-06-07 虎の巻 図面の価値を上げる このサイトも、500近く記事を書いてきましたが、読者の皆さんには感謝のお言葉を頂いて満足しています。ありがとうございます。 さて、今回から究極と言っては何なんですが、もっと図面を極めて頂きたいと考え、 […] 続きを読む
《壁面造作》スチール格子組みで壁面のイメージアップを図ってみた! 更新日:2023-06-24 公開日:2023-05-22 壁面造作店舗環境造作 今回は、壁面造作図として以下の図面を用意しました。 広々とした空間は店舗にとって良いことですが、あまりに広すぎるのも考えものです。 そこで、考えたのが、以下の壁面ボーダーです。 とは言っても、かなり以前の図面なので、興味 […] 続きを読む
壁面の光演出でミラーの銀抜き加工を使ってみた! 公開日:2023-04-04 演出照明 ■サイズ ■仕様 W1050×D30×H2400図面参照 支柱:縦フレーム:t=5 SUS FB HL※溝加工スクリーン:t=5mm クラッシュガラス+クリアガラス挟み込み ■備考 難易度:上級編 今回はミラーの銀抜 […] 続きを読む
《必須!》シンプルなガラス棚什器の事例 更新日:2023-03-18 公開日:2023-03-09 棚什器 リビングに置けばインテリアが映える! この什器は、過去に考えたガラス棚+ハンガーバーをセットした棚什器です。その後、友人が「こんなん欲しい!」と言い出して造ったとき図面です。 至ってシンプルで見た目もシャープでスタイリッ […] 続きを読む
汎用性を感じるローパーティションの作図事例 更新日:2023-03-10 公開日:2023-03-08 パーティション フードコートではあたりまえの設置物 今回は、先週の「フードコート」繋がりで、フードコートエリアを括るローパーティションの作図です。 ぱっと見、それほどたいしたことはありませんが、実際このパターンよく目にします。コスト面も […] 続きを読む
フードコートなどの客席テーブルとベンチの作図事例 公開日:2023-02-18 カウンター 変化のある楽しいデザイン 今回は、過去に参加したプロジェクトからの事例です。ショッピングセンターなどにはフードコートなるものが必ず存在します。 きっと無ければならない楽しいエリアです。そこにセッティングする客席のカウンタ […] 続きを読む
アンティーク調ガラスケースの作図事例 公開日:2023-01-24 ガラスショーケース 懐かしさを感じる意匠 今回の作図事例はちょっと洒落たガラスケースです。15年前のアンティークショップをデザインした際にスタッフが描いた図面です。 ちょっとグラマラスな気もしますが、今では中々お目にかかることがすくなった事 […] 続きを読む
《天井造作》大型吊りボーダーサインの作図事例 公開日:2023-01-06 ボーダーサイン 売り場を明確にするサイン 今回は、かなり大きなというか、非常に大きなボーダサインの作図事例となります。なんてたって、W寸法が 17,278mmもあるんです。 これは、大型商業施設のコーナーサインなのですが、例えば、”食品 […] 続きを読む
H鋼のハードさを演出したショーウィンドの事例 公開日:2022-12-27 ショーウィンド 見た目には良いが流行り廃りは否めない! 昔、「ハイテック」なんて言葉が内装業にも伝わったころ、誰もがスチール素材を使って、この「ハイテック」な空間を造っていたと感じます。 しかし、今現在では如何なもんかって声が出そうです […] 続きを読む
図面屋の仕事について! 更新日:2024-10-23 公開日:2022-12-22 日記と雑感知っておくべきこと さて今年も、後わずかになり何だか慌ただしくなってきました。今年も我がサイトを訪れて来た人は多く、いろいろなご意見を頂きました。 特に多かったのは、やはり図面を描いて2〜3年を経た人が多かったように感じます。この業界では、 […] 続きを読む
一般的な吊りボーダーサインの作図事例 公開日:2022-12-20 ボーダーサイン吊り式サイン 汎用性が特徴なサインフレーム 今回は、かなりショボい作図となっていますが、読者の方からのリクエストです。 作図初心者の方でも理解出来、しかも汎用性を感じるサイン事例でもあります。 よく活用したのは、やはりスーパーマーケッ […] 続きを読む
《床造作》店内階段に間接照明を施した作図事例 公開日:2022-12-16 床造作店舗環境造作 店内階段に間接照明は必須項目かも! さて今回は、店内階段の造作図の事例です。 過去には、たまにですが大型店の実施設計の仕事が入りました。店舗はすでに存在しませんが、資料だけは残ってましたので、ご披露します。 最近では、こ […] 続きを読む
テンパライトドア ”きほんのき” の作図事例 更新日:2024-04-09 公開日:2022-12-14 テンパーライトドア 最も基本的なテンパライトドアの図面 このサイトでも多くはありませんが、今回のようなテンパライトの作図をお届けしました。その中でも、最も一般的な作図が以下にあります。 パッと見て、シンプルで誰にでも描けそうな図面です。両 […] 続きを読む
《壁面造作》メイクルームで活躍する三面鏡の作図事例 公開日:2022-12-13 ユーティリティー壁面造作 演出照明を加味した豪華なスタイル 今回は,結婚式場のメイクルームにある三面鏡の作図事例です。ただの三面鏡では芸が無いので、両サイドに演出照明を取り込んでみました。 これで、ちょっと華々しく見えると感じますが… […] 続きを読む
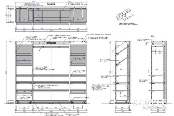
スライド式壁面什器の図面事例 公開日:2022-12-13 壁面造作什器 思いも付かないアイデアが! ボリューム感が必要な店舗ってありますよね! 例えば、量販店の家庭雑貨店、塗装店、それに在庫を持たなければならないスポーツショップなどなど。 このアイデアもそんな店舗を設計してて思いつきました。 […] 続きを読む
《建具》旗蝶番を使用した建具図の事例 更新日:2024-05-14 公開日:2022-12-06 両開き戸木製建具 旗蝶番のメリットとは! これまで多くの建具図を描いてきましたが、たまに今回の事例で紹介しするする「旗蝶番」というのが在ります。 小ぶりながら使う価値は大いにあります。以下特徴を描いておきますので、しっかり勉強してください […] 続きを読む
《建具》木製親子扉の ”きほんのき” 作図事例 公開日:2022-12-03 両開き戸建具木製建具 ■サイズ ■仕様 総W1210×D30×H1957図面参照 建具:t=30メラミン化粧板貼り枠:木工ラッカー塗装 四方フレーム:t=10×30角パイプゴールドメッキ ■備考 難易度:中級者/★★★☆☆ 作図説 […] 続きを読む
《建具》汎用性のあるスチールドア(SD)の作図事例 公開日:2022-12-03 鉄扉(SD) ■サイズ ■仕様 W840×D130×H2800図面参照 枠:SUS・HL曲げ加工扉:ST曲げ加工焼付け塗装仕上げ ■備考 難易度:中級者/★★★☆☆ 作図解説 今回は食品売場に設置したスチールドア(SD)の作図事例とし […] 続きを読む